Eladó családi ház Ajka 75 000 000 Ft

Leírás

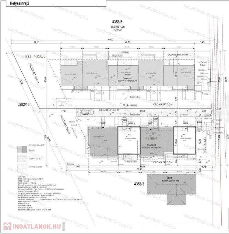
A veszprémi CasaNetWork Ingatlaniroda eladásra kínálja a 2216-ös számú ajkai sorházát!

Az ajkai újépítésű sorház jellemzői:

-98,13 alapterületű

-5,33 m2 terasz

-A gyors ütemben fejlődő városban és környékén rengeteg nagyvállalat és multi cég telepedett meg,és folyamatos a fejlődés.

-A sorházi lakások 5 percre találhatóak a városközponttól gépkocsival.

-A kivitelező cégnek számos referenciája van a környéken,kérésre természetesen megtekinthetők.

-Az épületben hőszivattyúval ellátott rendszer lesz kialakítva,megfelelve a mai kor igényeinek.Ez mellett 5 kamrás műanyag hőhídmentes nyílászárók kerülnek beépítésre.Kerámia burkolat,meleg burkolat(laminált padló)kiválasztása a vevő által.

-Kertkapcsolattal rendelkeznek az ingatlanok.

-A kivitelezés befejezése várhatóan 2025.III. negyed évben lesz.

Amennyiben a 2216-ös számú ajkai új építésű sorház, vagy bármely más ajánlatunkban szereplő telek, családi ház, vagy új építésű lakás, felkeltette érdeklődést, készséggel állok rendelkezésre a megadott telefonszámon.

Vásárolna, de nincs rá keret? Kollégáim díjmentes és bank semleges hitel ügyintézéssel állnak rendelkezésére!

Béndek Péter

ingatlan képviselő

0620 420-8120

           " CasaNetWork-A civilizált ingatlanértékesítés artériája ! "

Családi ház részletei

Ár: 75 000 000 Ft
Méret: 98 négyzetméter
Azonosító: 11338854
Irodai azonosító: 156202216
Telek: 120 négyzetméter
Ingatlan állapota: Kitűnő
Jelleg: sorház
Építőanyag: Tégla
Egész szobák: 4